HISTORISCHE BACKSTEINFABRIK - Einzigartige Industriearchitektur - vielfältige Nutzungsmöglichkeiten
Neu









- Objektart
- haus
- Objekttyp
- mehrfamilienhaus
- Vermarktungsart
- kauf
- PLZ
- 2460
- Ort
- Bruckneudorf
- ImmoNr.
- JSP-04388
- Grundstücksgröße
- 2300.00
- Nutzfläche
- 1300.00
- Kaufpreis
- auf Anfrage
- Bruttomiete
- auf Anfrage
- Energieausweis gültig bis
- 0000-00-00
- Provision
- 3% des Kaufpreises zuzüglich 20% Ust.
Beschreibung
Zum Verkauf gelangt eine außergewöhnliche Rarität am Immobilienmarkt: eine historische Backsteinfabrik aus dem Jahr 1896, die durch ihre markante Industriearchitektur, großzügige Raumdimensionen und ihr enormes Entwicklungspotential besticht.Solche Objekte sind selten geworden – insbesondere mit dieser Substanz, Grundstücksgröße und Nähe zur Metropolregion Wien.
Die Liegenschaft richtet sich besonders an Käufer mit Visionen:
Projektentwickler, Architekten, Kreative oder Unternehmer, die loftartiges Wohnen, Arbeiten oder innovative Nutzungskonzepte realisieren möchten.
Der derzeitige Eigentümer hat bereits einzelne Umbauten vorgenommen und Teilbereiche adaptiert, dennoch befindet sich das Objekt insgesamt in einem sanierungsbedürftigen Zustand und bietet dadurch umfangreiche Möglichkeiten für eine individuelle Neugestaltung.
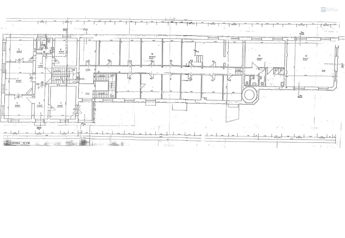
Die Liegenschaft besteht im Wesentlichen aus zwei Gebäudeteilen:
Straßentrakt
Der straßenseitige Gebäudeteil ist zweigeschossig ausgeführt und umfasst eine Nutzfläche von rund 310 m².
Hier befinden sich mehrere Räume unterschiedlicher Größe, die sich grundsätzlich für Wohnzwecke, Büros oder Ateliers eignen.
Betriebsgebäude / ehemalige Produktionshalle
Der anschließende Gebäudeteil stellt das ehemalige Fabrik- bzw. Betriebsgebäude dar und überzeugt durch seine beeindruckenden Raumdimensionen.
Besondere Merkmale:
Raumhöhen von bis zu ca. 8 Metern
großzügige Hallenflächen
teilweise bereits adaptierte Flächen
ehemalige Produktions- und Lagerbereiche
vorhandene Haustechnik (Gaszentralheizung)
Das darüberliegende Geschoss rund 360 m² und wurde teilweise ausgebaut.
Hof und Nebengebäude
Über den Innenhof erreicht man einen separaten Lagerschuppen mit rund 400 m² Fläche, der zusätzliche Nutzungs- oder Entwicklungsmöglichkeiten bietet.
Architektenplanung / Entwicklungspotential
Für die Liegenschaft wurde bereits eine Architektenplanung erstellt, die von einem Architekten ausgearbeitet wurde, der sich mit der möglichen Entwicklung des Objekts beschäftigt hat.
Diese Planung sieht im Wesentlichen vor:
Das bestehende Fabrikgebäude in mehrere Wohnungen – teilweise mit loftartigem Charakter – zu gliedern
den bestehenden Schuppen abzureißen und anstelle des Schuppens ein neues Wohngebäude zu errichten.
Die Planung gilt als grundsätzlich einreichfähig und könnte laut Angaben der Verkäufer genehmigungsfähig sein. Eine behördliche Einreichung bzw. Genehmigung liegt derzeit jedoch noch nicht vor und wäre vom Käufer selbst vorzunehmen. Der Denkmalschutz betrifft in erster Linie die straßenseitige historische Fassade, wodurch im Inneren sowie im Hofbereich weiterhin umfangreiche Gestaltungsmöglichkeiten bestehen.
Die Widmung BM (Bauland – gemischtes Baugebiet) ermöglicht eine gemischte Nutzung. Zulässig sind insbesondere Wohnnutzungen sowie – im Rahmen der widmungsrechtlichen Vorgaben – bestimmte gewerbliche und betriebliche Nutzungen.
Lage
Die Liegenschaft befindet sich in Bruckneudorf, unmittelbar angrenzend an die Stadt Bruck an der Leitha. Die Region gilt als aufstrebender Wohn- und Wirtschaftsstandort im östlichen Niederösterreich und profitiert insbesondere von ihrer strategisch günstigen Lage zwischen Wien und Bratislava.Die Verkehrsanbindung ist hervorragend. Über die nahegelegene A4 Ost Autobahn besteht eine schnelle Verbindung sowohl in Richtung Wien als auch nach Bratislava. Der internationale Flughafen Wien-Schwechat ist in etwa 25 Fahrminuten erreichbar. Auch das Zentrum von Wien liegt nur rund 35 Minuten entfernt.
Die öffentliche Verkehrsanbindung wird durch den nahegelegenen Bahnhof Bruck an der Leitha ergänzt, von dem aus regelmäßige Bahnverbindungen nach Wien sowie Richtung Bratislava bestehen. Dadurch ist die Liegenschaft sowohl für Pendler als auch für überregionale Nutzer gut erreichbar.
Auch die Nahversorgung ist sehr gut ausgebaut. Ein Supermarkt befindet sich direkt neben der Liegenschaft, weitere Einkaufsmöglichkeiten, Gastronomiebetriebe, Banken, Apotheken sowie medizinische Einrichtungen sind in wenigen Minuten erreichbar. Darüber hinaus stehen in der Umgebung Kindergärten, Schulen und verschiedene Dienstleistungsbetriebe zur Verfügung.
Insgesamt verbindet die Lage eine gute Infrastruktur, schnelle Verkehrsanbindungen sowie die Nähe zu zwei internationalen Städten, wodurch das Objekt sowohl für Wohn- als auch für Arbeits- oder Projektentwicklungen besonders attraktiv ist.
Ausstattung Beschreibung
Die Liegenschaft verfügt über eine grundlegende technische Infrastruktur und bietet aufgrund ihrer historischen Industriearchitektur zahlreiche Möglichkeiten zur individuellen Gestaltung im Zuge einer Sanierung.Die Beheizung erfolgt über eine Gaszentralheizung, die sich bereits im Gebäude befindet. Sämtliche Versorgungsanschlüsse wie Strom, Gas, Wasser sowie Kanal sind in der Liegenschaft vorhanden. Dadurch sind die wesentlichen infrastrukturellen Voraussetzungen für eine zukünftige Nutzung bereits gegeben.
Charakteristisch für das Objekt sind die großzügigen Raumhöhen, insbesondere im ehemaligen Betriebs- bzw. Fabrikgebäude, wo teilweise Höhen von bis zu etwa 8 Metern erreicht werden. Diese Raumdimensionen eröffnen interessante Möglichkeiten für loftartige Wohnkonzepte, Atelierflächen, Büro- oder Kreativräume.
Die historische Backsteinarchitektur aus dem späten 19. Jahrhundert verleiht dem Gebäude einen besonderen industriellen Charme und bildet eine attraktive Grundlage für eine architektonisch anspruchsvolle Revitalisierung. Ergänzt wird das Ensemble durch einen Innenhofbereich sowie ein Nebengebäude in Form eines ehemaligen Lagerschuppens, der zusätzliche Nutzungs- oder Entwicklungsmöglichkeiten bietet.
Insgesamt bietet die Liegenschaft eine solide Ausgangsbasis für eine umfassende Sanierung und Neugestaltung, bei der der historische Charakter des Gebäudes mit modernen Nutzungskonzepten kombiniert werden kann.
Sonstige Angaben
Diese historische Backsteinfabrik bietet eine seltene Gelegenheit, ein Objekt mit außergewöhnlichem architektonischem Charakter und großem Entwicklungspotential zu erwerben. Ob loftartiges Wohnen, kreative Arbeitsräume oder ein spannendes Wohnprojekt – die Liegenschaft eröffnet vielfältige Möglichkeiten für visionäre Käufer.Aufgrund des bestehenden Sanierungs- und Entwicklungsbedarfs erfolgt der Verkauf auf Verhandlungsbasis.
Bei entsprechendem Interesse sind Angebote in angemessener Höhe willkommen und werden vom Eigentümer geprüf
Bei Interesse an dieser Immobilie ersuchen wir um Bekanntgabe Ihres vollständigen Namens, Ihrer Anschrift, Telefonnummer sowie Ihrer E-Mail-Adresse. Aufgrund unserer Nachweispflicht gegenüber dem Abgeber können wir nur Anfragen mit vollständigen Kontaktdaten bearbeiten. Gerne übermitteln wir Ihnen anschließend detaillierte Unterlagen und stehen für einen Besichtigungstermin bzw. weitere Informationen zur Verfügung.
Ansprechpartner
Herr Josef Stefan Polke
POLKE & PARTNER IMMOBILIENTREUHAND
Servitengasse 2
1090 Wien
Telefon1
+43 1 319 09 11
mobile
+43 664 263 53 36
Email
jsp@polke-partner.at